Descripción
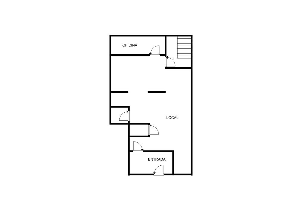
Local comercial en la planta baja de un edificio plurifamiliar bajo rasante sin ascensor en el municipio de Oliva, provincia de Valencia. Local destinado a fines comerciales con acceso y directo a la vía pública. El local cuenta con una amplia zona diáfana, varias estancias y con un baño. Fue construido en el año 1978. El inmueble se encuentra en una zona tranquila, rodeado por viviendas residenciales. Cuenta con fácil acceso a la carretera y otros nudos de comunicación. Cercano a establecimientos y comercios de la zona.
Tour Virtual
Extras
Área de juegos
Bar
Garaje
Golf
Jardines
Acceso minusválidos
Pista de pádel
Piscina
Pista de tenis
Portero físico
Solarium
Trastero
Valla perimetral
Vigilante
Gimnasio
AscensorVideo
